Adresse:Avenue 8 mai 1945 et Boulevard Henri Poincaré, SARCELLES , 95
A vendre
€ 30000
Type:
Bureau
Surface:2995 ㎡
Nombre des pièces:
4 pièces
Date de livraison:2020-11-01
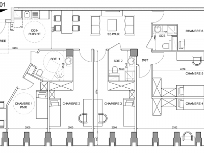
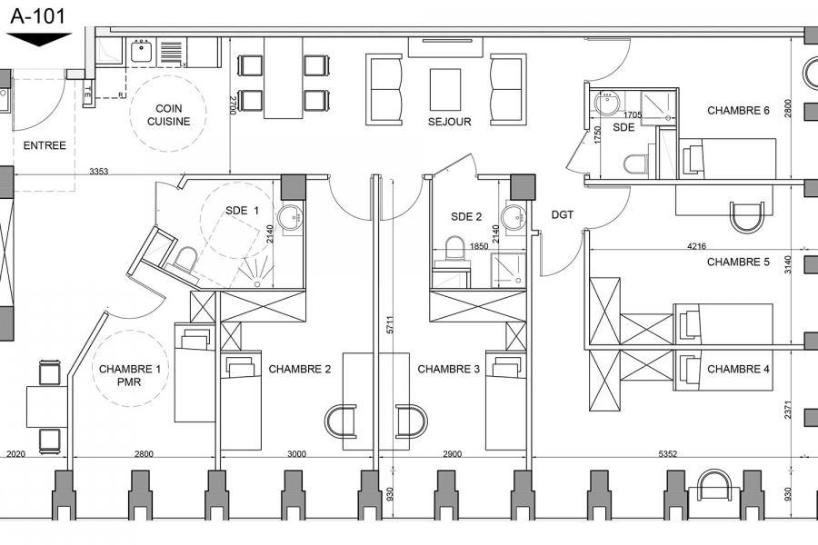
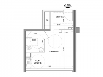
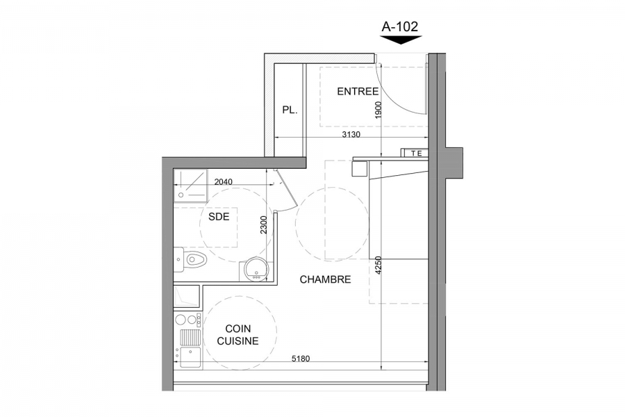
Les parcelles sur lesquelles se situe le projet sont référencées 000 BD 614 et 000 BD 610 mesurant 2995m² de surface totale.
L'immeuble du projet est desservi par l'avenue 8 Mai 1945 et le boulevard Henri Poincaré tandis que l'accès au parc de stationnement se fait par une rampe accessible depuis l'Allée Robert Desnos.
Vidéo
Carte
Plan d'accès
M.WANG

0148392161
0609697325
0148391664
wang@eurasiagroupe.com
http://www.demo.eurasiagroupe.com/real-estate/20161116108
PDG du EURASIA GROUPE









